シェアハウスについて

(男子1)久保建設シェアハウス

施設種類:個人住宅
定員:男子15名

① 寮費(光熱費込み) 40,000円(予定)
② 久万高原町からの補助 28,000円(予定)
③ 食費 27,200円(予定)
実質負担金 ①-②+③ 39,200円(見込)

※家賃は物価変動により、変更(増額)することがあります。月々久保建設さんに12,000円支払っていただくようになります。食費については、翌月に食べた実績に応じて校納金で引き落としになります。

舎室:各部屋1人(机・テレビ・ベッド・エアコン完備)
共用部:トイレ・風呂・シャワー室・台所
食事:(朝食)平日あり、休日なし (昼食)平日給食、休日なし (夕食)平日・休日ともあり※食事は「星天寮」で食べます。
その他:学校まで徒歩11分。自転車通学可。冷蔵庫・電子レンジ・洗濯機などすべて完備。床暖房。備え付けのベッド、学習机、収納棚あり。

住所 〒791-1201 愛媛県上浮穴郡久万高原町久万1389番の1 久保建設シェアハウス

IMG_20250501_110357IMG_20250501_110407IMG_20241219_125916IMG_20241219_125919IMG_20260126_163812IMG_20260126_164009IMG_20260126_165259IMG_20260126_165309IMG_20260126_165401

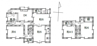
(男子2)入野住宅

施設種類:町借用物件
定員:男子3名

① 寮費(光熱費込み) 35,000円(予定)
② 久万高原町からの補助 24,500円(予定)
③ 食費 27,200円(予定)
実質負担金 ①-②+③ 37,700円(見込)

※家賃は物価変動により、変更(増額)することがあります。

舎室:各部屋1人(エアコン・Wi-Fi付)※エアコンは入居後設置
共用部:トイレ・風呂・台所
食事:(朝食)平日あり、休日なし (昼食)平日給食、休日なし (夕食)平日・休日ともあり ※食事は「星天寮」で食べます。
その他:学校まで徒歩20分。自転車通学可。冷蔵庫などは町所有。

住所:〒791-1202 上浮穴郡久万高原町入野281番地

全景1階洋室1階和室2階和室(6畳)トイレ玄関から台所

スクリーンショット (2)

(女子)久万運送住宅

施設種類:個人住宅
定員:女子3名

① 寮費(光熱費込み) 42,000円(予定)
② 久万高原町からの補助 27,200円(予定)
③ 食費 27,200円(予定)
実質負担金 ①-②+③ 39,800円(見込)

※家賃は物価変動により、変更(増額)することがあります。月々久万運送さんに14,800円支払っていただくようになります。食費については、翌月に食べた実績に応じて校納金で引き落としになります。

舎室:各部屋1人(エアコン・Wi-Fi付)
共用部:トイレ・風呂・台所
食事:(朝食)平日あり、休日なし (昼食)平日給食、休日なし (夕食)平日・休日ともあり ※食事は「星天寮」で食べます。
その他:学校まで徒歩10分。自転車通学可。冷蔵庫・洗濯機などはあり。
隣に大家宅があり、道前に町長さんが住んでいるので何かと安心!トイレが三つあり、水回りもきれい。部屋もきれい。

住所:〒791-1206 愛媛県上浮穴郡久万高原町上野尻甲124−1

画像1画像2画像3画像4

住環境についてに戻る